New development
Resale property
Air Conditioner
Elevator

Magnificent Apartment on Paseo de Gracia — Renovation Project

3,500,000
14,768
per m²
Area icon
237
Stairs icon
3
Floor
Bed icon
4
Bedroom
Bath icon
3
Bathrooms

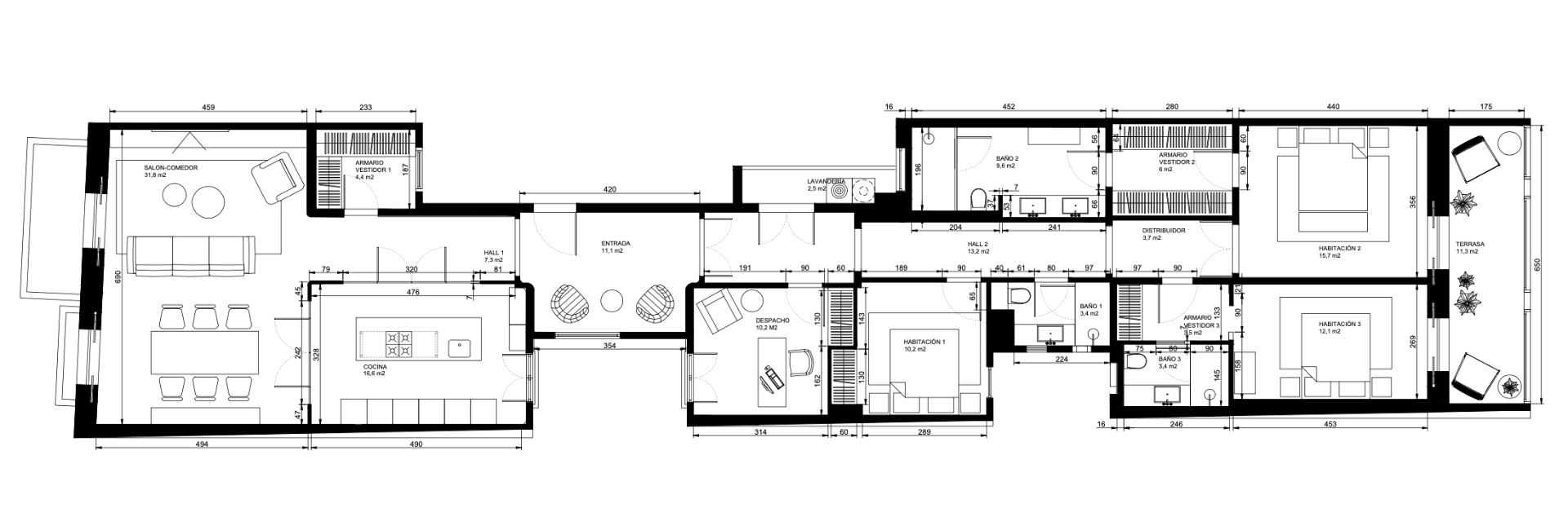
Magnificent 237m² apartment in the heart of Barcelona, located on the iconic Paseo de Gracia. Currently being prepared for renovation according to listing renders representing a design project, with possibility to adjust the project according to client's measurements and taste. The spacious living room features two intimate balconies with spectacular Paseo de Gracia views and northeast orientation providing bright morning light. The property has 4 bedrooms and 3 bathrooms, including 2 magnificent suites with direct access to the southwest-facing gallery-terrace with afternoon sun, overlooking a quiet inner courtyard, ideal for enjoying serenity in the city center. The apartment is designed to meet the highest living standards, with built-in closets for discreet storage, heating and air conditioning for year-round comfort. Located on the third floor of a classic modernist building with elevator and attentive concierge service, it's completely exterior with excellent natural light throughout the day. The location offers easy access to vibrant restaurants, luxury boutiques, and the architectural grandeur of Casa Batlló and Sagrada Familia. Eixample Derecho provides a rich cultural and urban environment.

Main features

  • Bedrooms: 4
  • Bathrooms: 3
  • Built area: 237 m²
  • Price: 3,500,000

Equipment and extras

  • Air conditioner
  • Elevator

Location

The property is located in Barcelona, Eixample.

Last update:
21 Mar 2026
Code:
PIS0030
Refresh icon
Refresh availability

Building details

  • Construction year
  • Building type
  • Floor type
  • Parking
  • Garage
  • Heating
  • Emergency status
  • Energy sertification

Flat

details

  • Total area
    237
  • Living area
  • Kitchen area
  • Terrace
  • View from windows
  • Renovation
    2025

Request viewing

Schedule a free consultation. We'll call you back within 10 minutes to discuss your needs.

or email us at contact@humahome.com

Thank you! Your submission has been received!

Oops! Something went wrong while submitting the form.

This is some text inside of a div block.
This is some text inside of a div block.

Tell us your story

Schedule a free consultation. We'll call you back within 10 minutes to discuss your needs.

or email us at contact@humahome.com

Thank you! Your submission has been received!

Oops! Something went wrong while submitting the form.

We appreciate your opinion

or email us at feedback@humahome.com

Thank you! Your submission has been received!

Oops! Something went wrong while submitting the form.

Looking for your next meaningful role?

Huma Home is a place for people who think deeply, act responsibly, and care about the experience they create for others.

If that sounds like you,
send your CV to job@humahome.com