

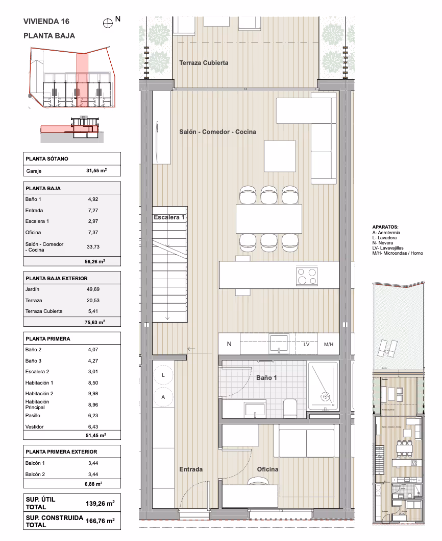
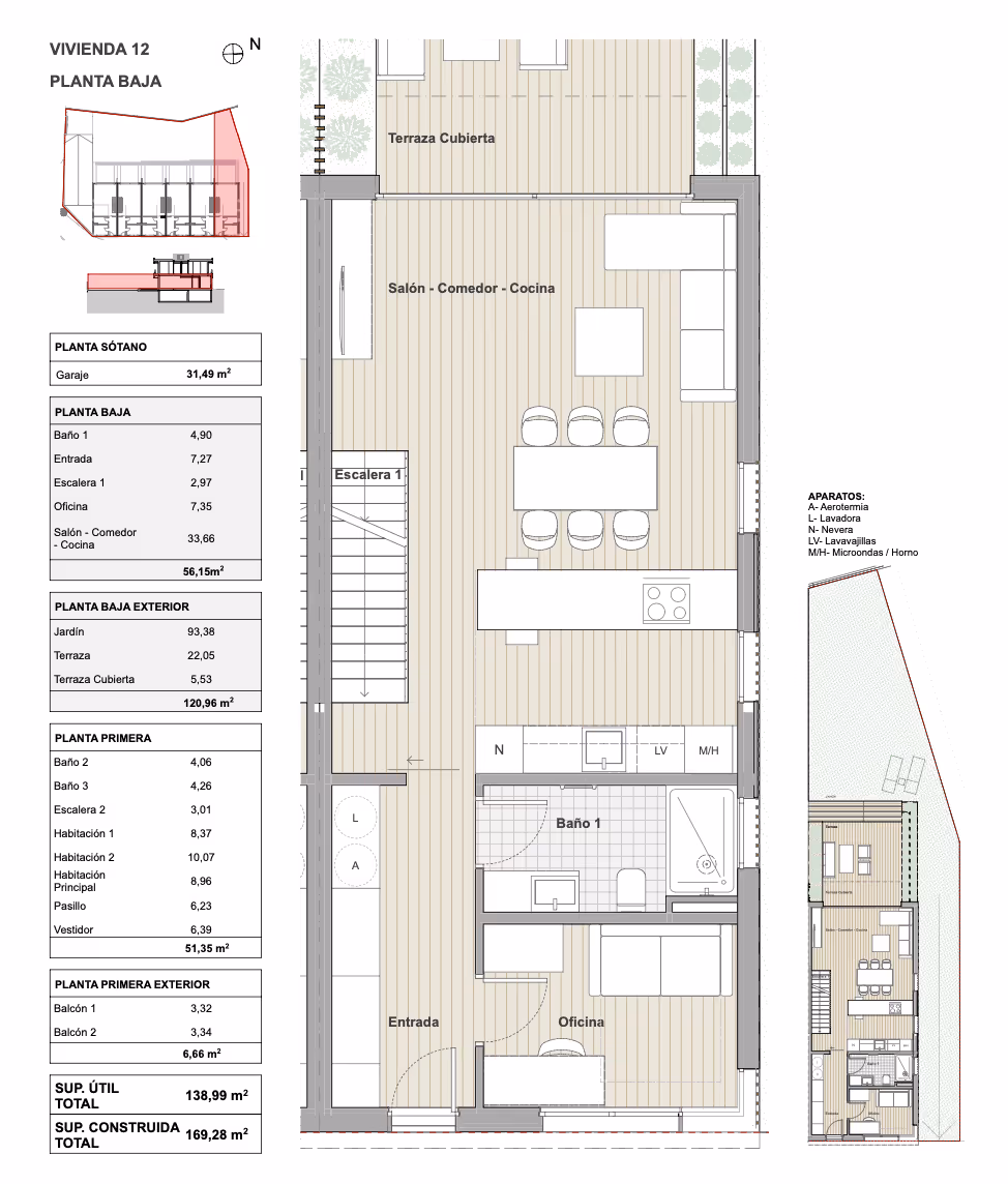
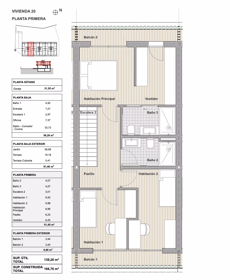
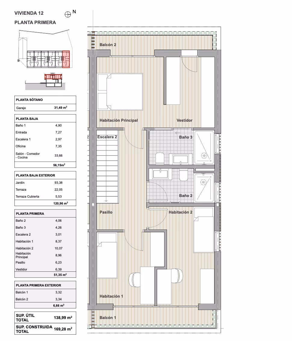
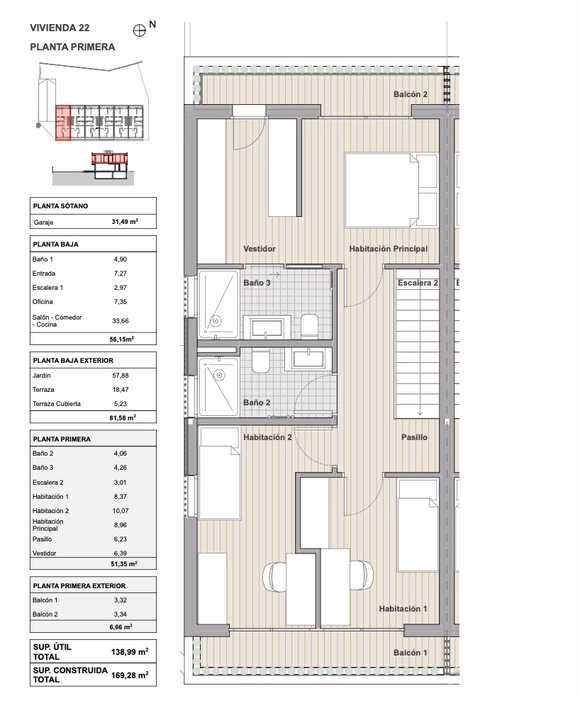
Scala Townhouses is an exclusive development of six modern semi-detached homes located in Palafolls, Catalonia. Each home offers generous private outdoor areas suitable for a garden, pool, or barbecue, along with both covered and uncovered terraces. All units include a private two-car garage and a storage room. With a total built area of approximately 169.28 m², these residences combine functional planning with warm, high-quality finishes. Designed by Vilalta Studio, the townhouses feature hardwood floors and ceilings with excellent sound insulation, creating a cozy and welcoming atmosphere.
The homes are organized across spacious interior and exterior areas, combining a 169.28 m² built surface with functional private outdoor zones suitable for leisure, gardening, or relaxation. Terraces include both covered (5.23 m²) and uncovered (18.47 m²) sections, while each unit includes a private 31.49 m² garage and an additional storage space.
Situated in Palafolls, Scala Townhouses benefit from a peaceful natural environment while offering excellent connectivity. Blanes is just nine minutes away, and beaches such as Cala Treumal are around 15 minutes by car. The area provides convenient access to train lines, road connections, local services, nature spots, and is well positioned between Barcelona and Girona.
Schedule a free consultation. We'll call you back within 10 minutes to discuss your needs.
Thank you! Your submission has been received!
Oops! Something went wrong while submitting the form.
Schedule a free consultation. We'll call you back within 10 minutes to discuss your needs.
Thank you! Your submission has been received!
Oops! Something went wrong while submitting the form.
Thank you! Your submission has been received!
Oops! Something went wrong while submitting the form.
Huma Home is a place for people who think deeply, act responsibly, and care about the experience they create for others.