

Amura Residences is a contemporary development of 38 apartments in the Maresme region, just 200 meters from the sea and a short walk from the main beach in Mataró. Designed by Vilalta Studio under the direction of architect Xavier Vilalta, it combines sustainable, award-winning architecture with modern aesthetics and functional design. Residents enjoy exceptional sea views, carefully crafted communal areas, and a peaceful coastal lifestyle close to Barcelona.
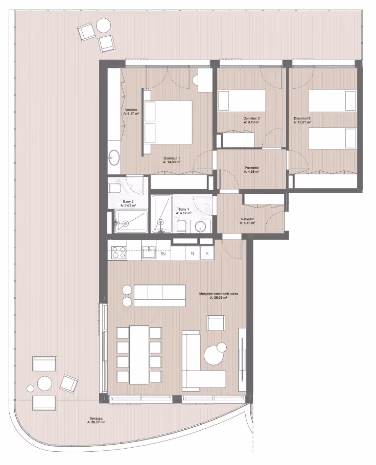
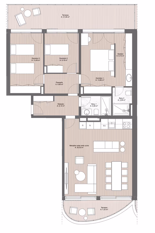
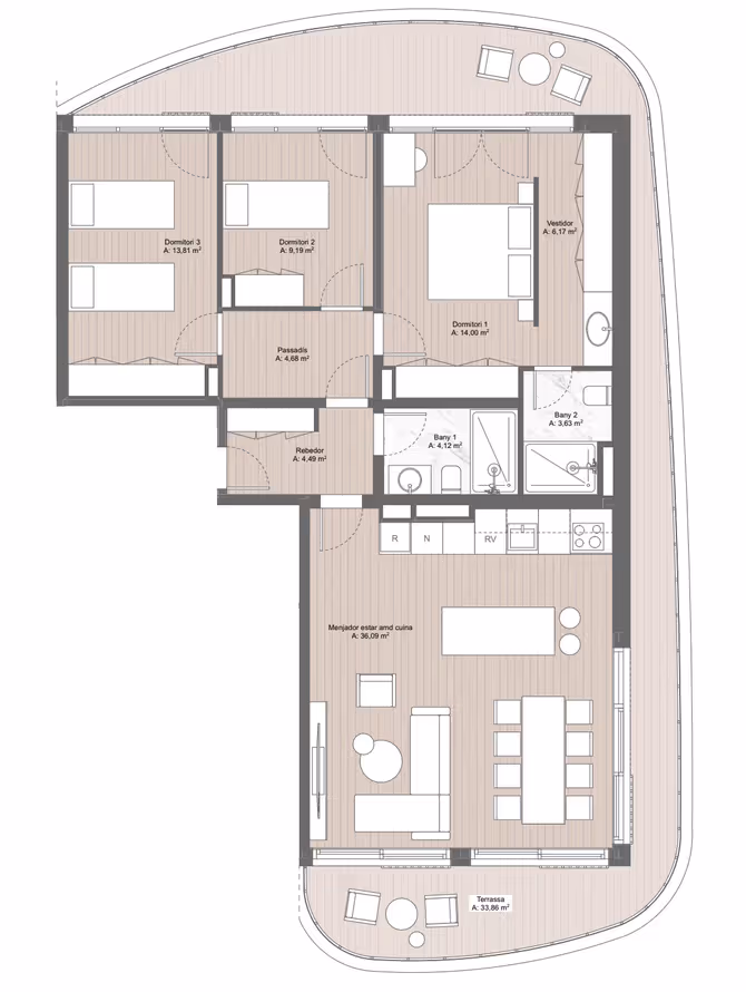
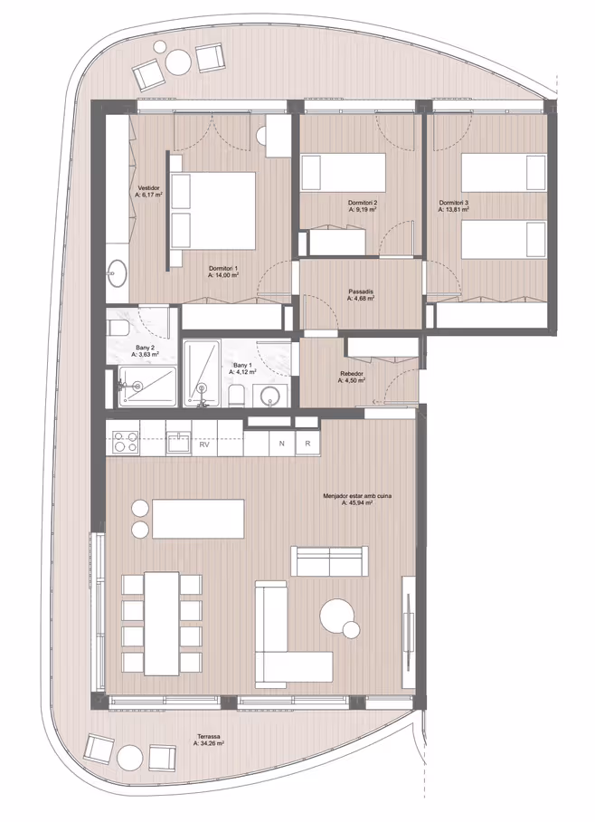
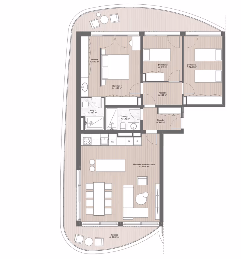
The apartments are designed with open-plan layouts that connect the living room, dining area, and kitchen to enhance the sense of space and natural light. Bedrooms are conceived as tranquil retreats, with clean lines, natural materials, and optimal orientation to promote rest and well-being.
Amura Residences is located in Mataró, in the Maresme region, in a privileged setting just steps from the sea. The area offers excellent public transport connections, quick access to health services such as Mataró Hospital, educational institutions like Escola Pia Santa Anna and Tecnocampus, and shopping options including Mataró Parc, as well as local markets, restaurants, and leisure facilities. All this is only around 30 minutes by car from Barcelona, while preserving the calm and quality of life of a seaside town.
Schedule a free consultation. We'll call you back within 10 minutes to discuss your needs.
Thank you! Your submission has been received!
Oops! Something went wrong while submitting the form.
Schedule a free consultation. We'll call you back within 10 minutes to discuss your needs.
Thank you! Your submission has been received!
Oops! Something went wrong while submitting the form.
Thank you! Your submission has been received!
Oops! Something went wrong while submitting the form.
Huma Home is a place for people who think deeply, act responsibly, and care about the experience they create for others.